Hinged Window and Door Systems COR 80 Hidden Sash

For pricing information please send a request.

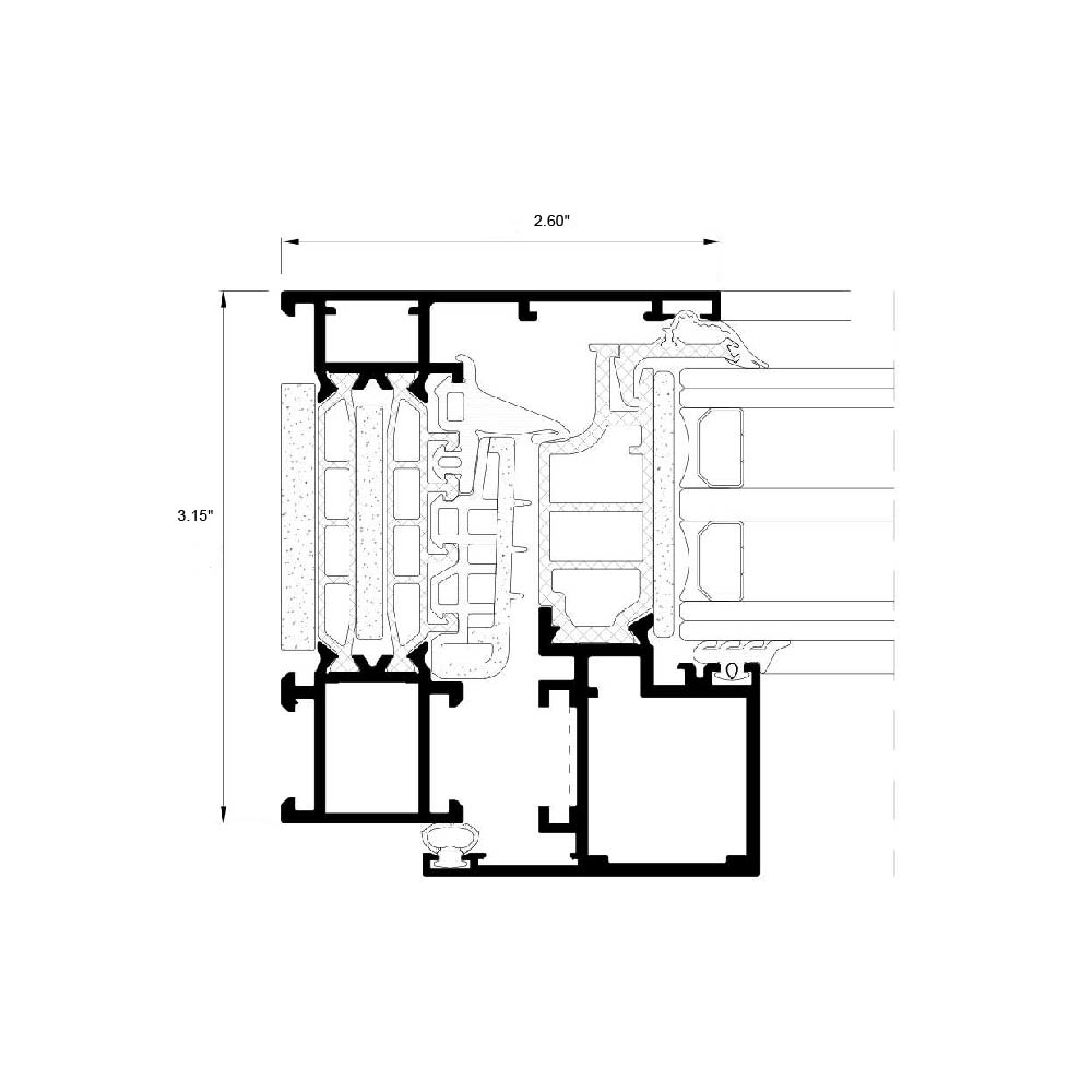
Elegant design with straight aesthetician which the sash is concealed behind the frame, thus maximizing the glazed surface and the entry of light. Added to all of this is the great thermal and acoustic performance prompted by the 1.77" thermal break and a glazing capacity of up to 2.01" that allows the installation of triple glazing.

Shipping: Free

est. delivery:  

close

Estimate shipping

  • Description
  • Downloads

Description

close

Possibilities
» Security hardware
» Concealed hinges
» Concealed drainage
» Concealed handle

Technical Data

» Glazing
Max. 2.01"
Min. 1.42"

» Opening possibilities

Inward opening

Side hung

Tilt & turn

Tilt only

Parallel Sliding

» Sightlines
Frame 3.15"
Sash 3.15"

» Profile thickness
Window 0.075"

» Polyamide strip length
1.77"

» Maximum sash dimensions

Standard Solution
Width (L) 51.18"
Height (H) 94.49"

HD Hinges (Side Hung)
Width (L) 47.24"
Height (H) 137.80"

» Maximum sash weight
160 kg

Consult maximum weight and dimensions according to typologies.

» Finishes
Possibility of dual color systems
Color powder coating (RAL, mottled and rough)
Wood effect powder coating
Anti-bacterial powder coating
Anodized

Test Center

» Transmittance

Uw ≥ 0,71 (W/m²K)

Consult maximum weight and dimensions according to typologies

» Acoustic insulation
Rw up to 46 dB

» Air permeability
(EN 12207) Class 4

» Water tightness
(EN 12208) Class E1650

» Wind resistance
(EN 12210) Class C5
Reference test 48.43" x 58.27" / 2 sashes

 

Downloads

close

Products attachments

Technical Technical

GET A QUOTATION close

Please fill all fields marked with * in order to continue.