Facade Systems ST 52

For pricing information please send a request.

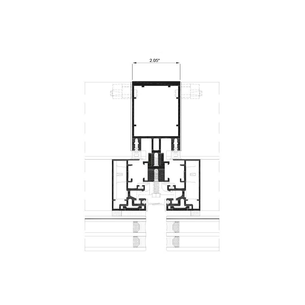
» Wide variety of mullions (from 0.63" to 9.06") and transoms (from 0.89" to 8.09") that solve the different aesthetic and constructive needs of the architectonic sector » Internal seen section 2.05"

Shipping: Free

est. delivery:  

close

Estimate shipping

  • Description
  • Downloads

Description

close

» Extensive profile range, their mechanical unions allows for all types of façades to be built (vertically, inclined, 90° corners, corners, polygonal) as well as solving large and heavy glazing modulations
» Water tightness elements: drainage pipettes, tear strip gaskets and vulcanized angles
» The glass is glued to an aluminum frame, which is glued to the main structure using clips
» This system offers the same outside look, whether it is fixed glazing or proyecting opening. Only glass finished, with EPDM gaskets

Technical Data

 

» Glazing

Maximum glazing 1.50"

Minimum glazing 0.24"

*Consult us for greater thicknesses
» Opening possibilities

Hidden Top Hung
» Sections

Mullion 2.05"

Transom 2.05"


» Profile thickness

Mullion 0.083" and 0.118"

Transom 0.083"
» Minimum / Maximum opening dimensions

Min. Width (L) = 19.69"

Min. Height (L) = 25.59"

Max. Width (L) = 98.43"

Max. Height (H) = 98.43"


» Maximum weight / sash

180 kg
» Maximum weight of fixed lights

350 kg
Consult maximum weight and dimensions according to typologies
» Finishes

Powder coating / Anodized

 

Test Center

 

» Transmittance

Ucw from 0.7 (W/m²K)

Please consult dimensions and glazing 
» Certification CWCT British Standard 
» Air permeability

(EN 12152) CLASS AE
» Water tightness

(EN 13114) CLASS RE750
» Wind resistance

(EN 13116) APT
(Design loading 1200 Pa - security loading 1800 Pa). Test reference 118.11" × 137.80"

Downloads

close

Products attachments

Technical Technical

GET A QUOTATION close

Please fill all fields marked with * in order to continue.