THE ADVANTAGES OF MODERN ALUMINUM WINDOWS:
- elegant and aesthetic
- durable and highly resistant to weather conditions
- heat-insulating and energy-saving
- effectively mute noise
- thanks to narrow profiles, the surface of a glass pane looks bigger
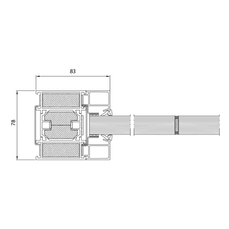
THE RB 78 FR SYSTEM FEATURES:
- the solution has been developed and tested in the ITB for two classes of fire resistance: FR30 and FR60
- gap between modules is only 5⁄32in (metric – 4mm)
- maximum widths of glass modules 4ft 11.06 in (1.5m) (with a maximum height of 11ft 9.73 in (3.6m)), and 5ft 10.87 in (1.8m) (with a maximum height of 9ft 10.11 in (3.0m))
- there is no limit to the maximum wall length
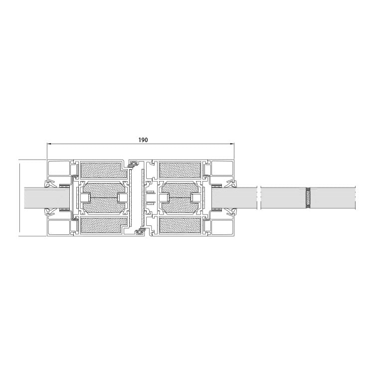
The Baualu offer includes the solution of transparent firewalls, i.e. The so-called “mullionless” walls based on the RB 78 FR system. It allows construction of the internal partitions without any visible vertical profiles, separating the individual wall modules, while maintaining the full fire resistance. The gap between the glass panes is only 4mm, and it is filled with a fire-retardant, swelling material and non-flammable silicone. Silicone is available in three different colours (black, grey or white).
Fire-breaks made in this way can have a height of even 3.6m, and the width of the modules can be up to 4ft 11.06 in (1.5m). Fire tests carried out at the Institute of Building Technology (ITB) included the so-called free edge partition model, so there is no limit to the maximum length of this wall type.
The RB 78 FR mullionless wall system allows unlimited design and construction of internal partition walls with very large surfaces. Thanks to transparent modules, constructions made in this system provide optical enlargement of a building’s interior. At the same time, the system ensures security by allowing organization of fire zones in buildings, and by guaranteeing appropriate conditions for evacuation of people.
CROSS-SECTION IMAGES
 |
 |
 |
 |
| Cross section through the frame of the fixed wall |
Cross section through the door |
Mullionless wall-top construction |
Mullionless wall-bottom construction |
AVAILABLE COLORS